Характеристики
Тепловой поток, кВт
—
2031
По запросу
Нашли дешевле?
Выберите нужный вариант товара
Градирня ГРД - 350Н Нержавейка
Материал градирни:
Нержавейка
Градирня ГРД - 350У Углеродистая сталь
Материал градирни:
Углеродистая сталь
Описание
Технические характеристики
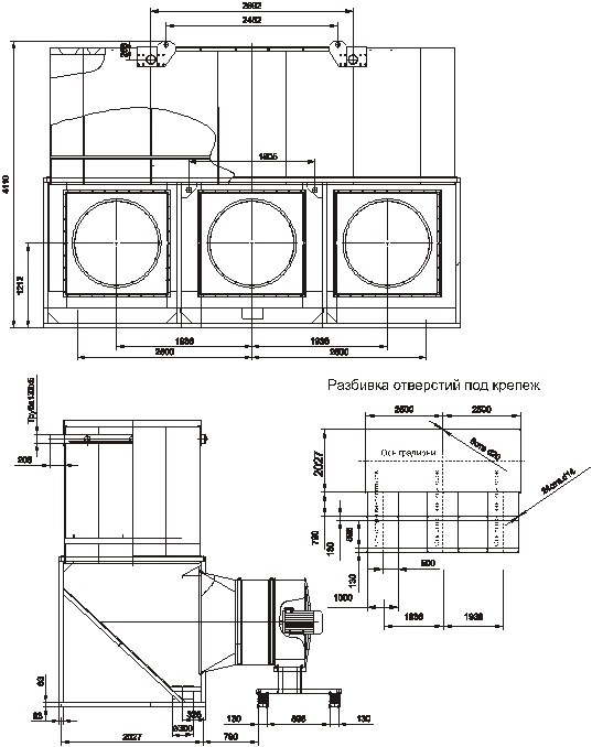
Тепловой поток, кВт: 2031 Масса(сухого), кг: 3210 Масса(мокрого), кг: 3806 Количество электродвигателей, шт: 3 Мощность двигателя, кВт: 7,5Габаритные размеры
Габаритные размеры градирни ГРД - 350Н
